A vendre appartement T4 avec terrasse à Champagne Au Mont D'or
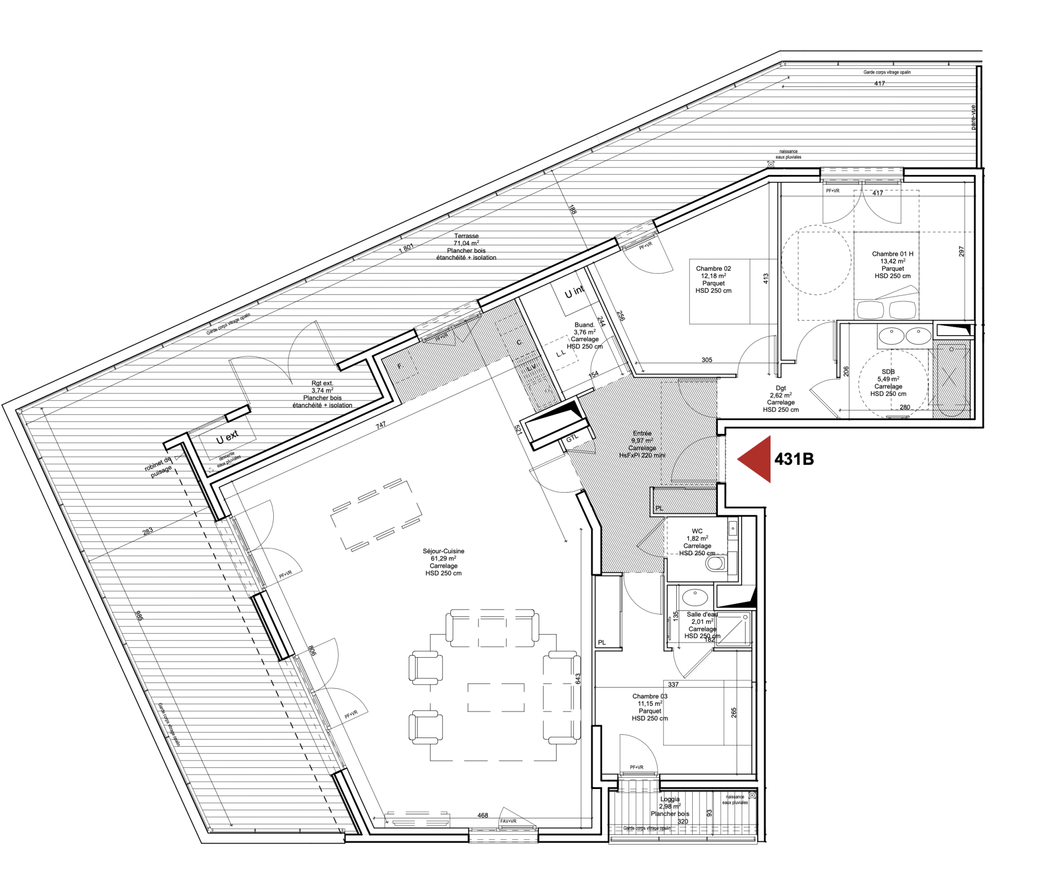
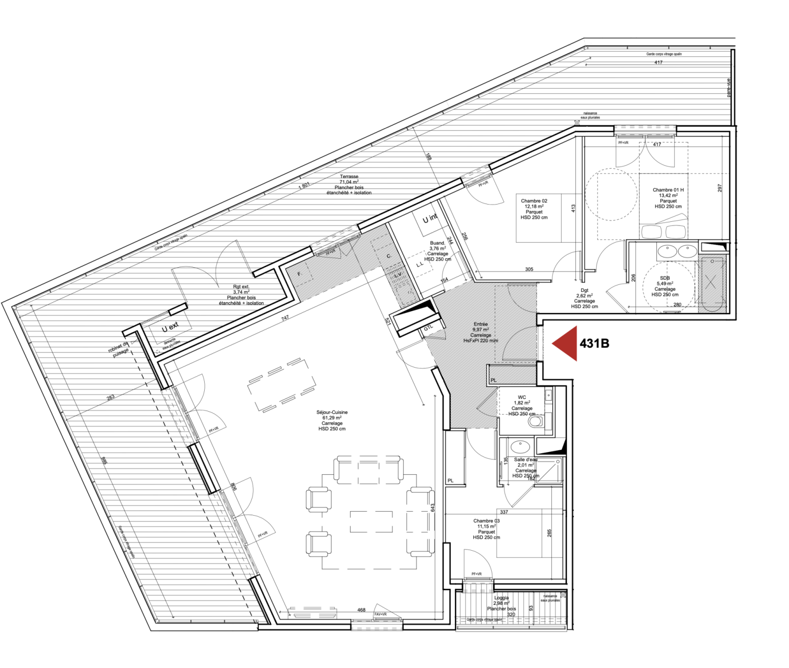
Champagne-au-Mont-d'Or (69410)DISPONIBLE DE SUITE - Immobilière de Salvagny vous propose ce superbe appartement d'une surface habitable de 123 m² situé sur la commune de Champagne au Mont d'Or. Au 3ème et dernier étage, il se compose d'un vaste hall d'entrée distribuant : un séjour/cuisine de 61 m², une buanderie, 3 chambres dont une avec salle d'eau et accès loggia, une salle de bains et des toilettes séparées. Terrasse de 68 m² plus une loggia de 3 m². Résidence sécurisée disposant de prestations de qualité : carrelage grès cerame 60x90 cm ou 120x120 cm dans la pièce à vivre, parquet contrecollé en chêne dans les chambres, salle de bains entièrement équipée avec faïence toute hauteur et meuble vasque contemporain, placard aménagé, WC suspendu... Chauffage au sol et raffrachissement par pompe à chaleur, volets roulants électriques, isolation thermique et acoustique par double vitrage isolant. Un garage box est possible avec suplément. Bien en copropriété de 42 lots d'habitation, charges mensuelles de 174 €. Pour renseigenements et visites, contacter Sylvie MACHADO, Immobilière de Salvagny by Pierrefeu Immobilier.
Ce site est protégé par reCAPTCHA, les Politiques de Confidentialité et les Conditions d'Utilisation de Google s'appliquent.
En Bref
Infos financières
Energie
Détails des diagnostics énergtiques
Montant estimé des dépenses annuelles d'énergie de ce logement pour un usage standard est compris entre 1 043 € et 1 411 € . 2021 étant l'année de référence des prix de l'énergie utilisés pour établir cette estimation.
