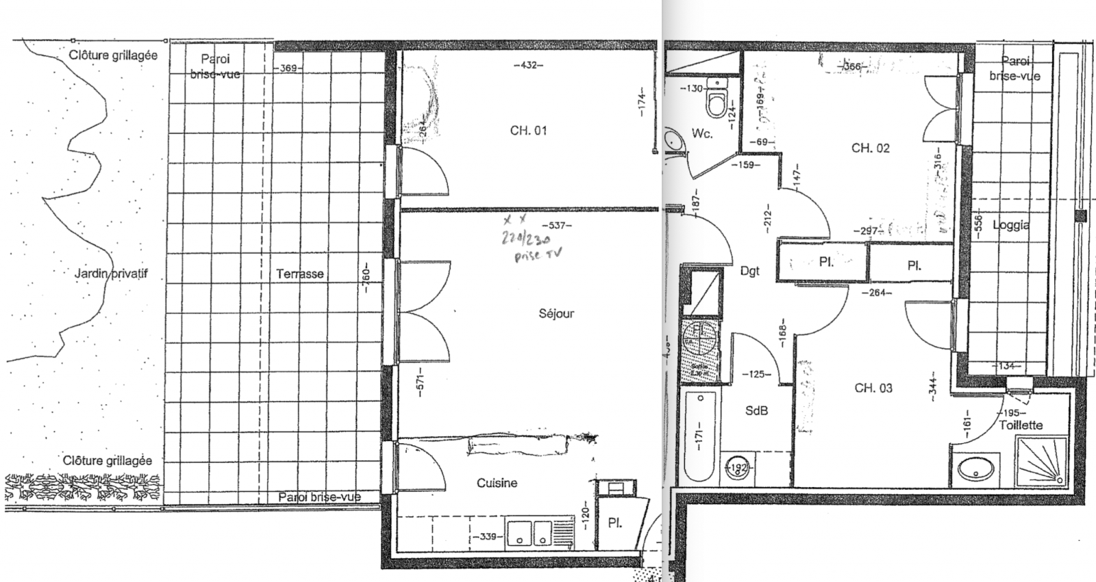
Appartement T4 en rez-de-jardin au centre de La Tour de Salvagny
La Tour-de-Salvagny (69890)L'Immobilière de Salvagny vous propose sur la commune de La Tour de Salvagny, un appartement en rez-de-jardin de type T4 de 79,17m2 (surface Carrez), au sein d'une résidence sécurisée avec piscine. Situé au centre du village, vous découvrirez une bel espace de vie, avec cuisine ouverte, le tout donnant accès à une belle terrasse d'environ 28m2, et un jardin privatif d'environ 100m2. Le coin nuit, séparé, se compose de 3 chambres avec placards, dont une avec salle d'eau attenante, d'une salle de bains et d'un WC séparé. Un box fermé complète ce bien. Chauffage collectif par chaudière à granulés. Charges de copropriété : environ 195 €/mois (chauffage, piscine, esp. vert, etc.). DPE : C. Les plus : proche de toutes commodités, traversant Est/Ouest. Pour tous renseignements et visites : nous contacter.
En Bref
Infos financières
Détails des diagnostics énergtiques
Montant estimé des dépenses annuelles d'énergie de ce logement pour un usage standard est compris entre 560 € et 790 € . 2021 étant l'année de référence des prix de l'énergie utilisés pour établir cette estimation.
