A louer T2 meublé, neuf, balcon et garage à Tassin La Demi lune
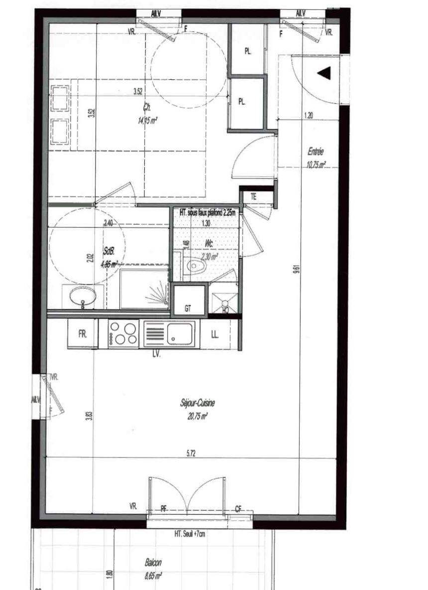
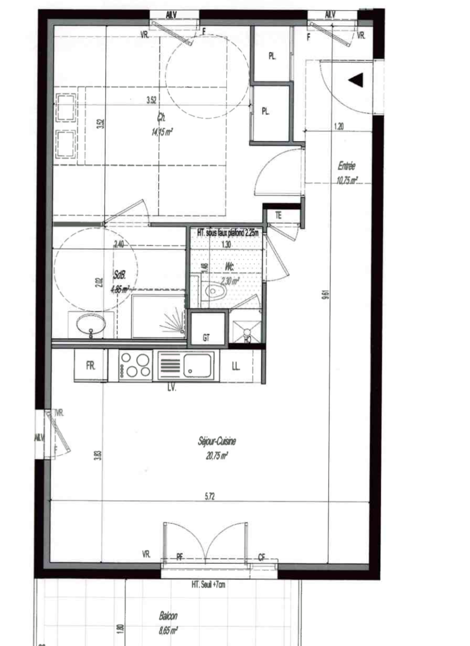
Tassin-la-Demi-Lune (69160)Immobilière de Salvagny vous propose ce charmant T2 de 52,80 m² au 1er étage d'une résidence neuve et sécurisée située au 215 avenue Charles de Gaulle à Tassin. Meublé avec soin, il dispose d'un hall d'entrée avec placard, d'un couloir équipé d'un bureau qui ouvre sur une pièce de vie avec balcon (exposé sud), cuisine ouverte aménagée et équipée en électroménager, grand WC séparé, une belle chambre avec placard et une salle d'eau. Volets roulants électriques, garage box en sous-sol et local à vélos. Proche des transports TCL et Gare d'Alaï. Chauffage au gaz. DPE: C avec une consommation énergétique comprise entre 576 € et 779 €. Loyer 1065 € charges comprises dont 65 € de charges pour les communs avec régularisation annuelle. Dépot de garantie pour un meublé 2000 €. Honoraires charge locataire 686 € dont 158 € pour l'état des lieux. Pour renseignements et visite, contactez Immobilière de Salvagny by Pierrefeu.
Ce site est protégé par reCAPTCHA, les Politiques de Confidentialité et les Conditions d'Utilisation de Google s'appliquent.
En Bref
Infos financières
Energie
Détails des diagnostics énergtiques
Montant estimé des dépenses annuelles d'énergie pour un usage standard est compris entre 576 € et 779 € . Prix moyens des énergies indexés sur les années 2021, 2022 et 2023 (abonnements compris).
